,
,
,
,
,
,
,
,
,
,
,
,
,
,
,
,
,
,
, 

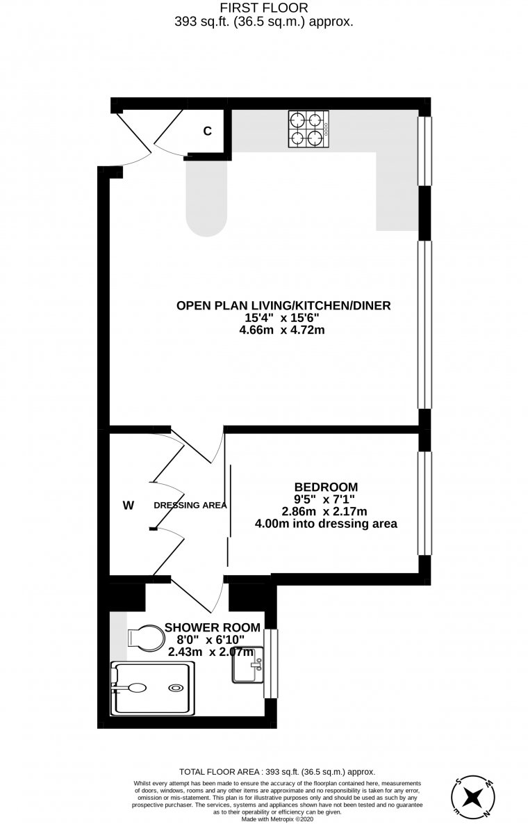
A beautiful one double bedroom property with an open plan modern kitchen / sitting room situated in this well maintained building with porter and lift. A spacious and modern living space, ideal for a couple/student. Closest transport links include Edgware Road station, Marylebone Station and Paddington, all within walking distance. All the amenities that the area has to offer within a couple minutes walk. Rent includes hot water & heating. Available 18th May 2026.